Máy Rửa Bát Công Nghiệp Hobart H600 – Giải Pháp Đa Năng Cho Bếp Nhà Hàng Cao Cấp
Hobart H600- Số 431 Hoàng Quốc Việt, Cầu Giấy, HN086.918.6699
- Số 236 Nguyễn Văn Cừ, Long Biên, Hà Nội086.958.6699
- Bán Buôn086.958.6699
- Số 44 Tôn Đản, Phan bội châu, Hồng Bàng, Hải Phòng0962.888.166
- Công suất rửa lớn, đáp ứng giờ cao điểm
- Thiết kế cửa mở lên thông minh, thao tác nhẹ
- Kiểm soát nhiệt độ chính xác với Thermostop
- Tiết kiệm nước và điện năng
- Độ bền cao, phù hợp môi trường bếp chuyên nghiệp
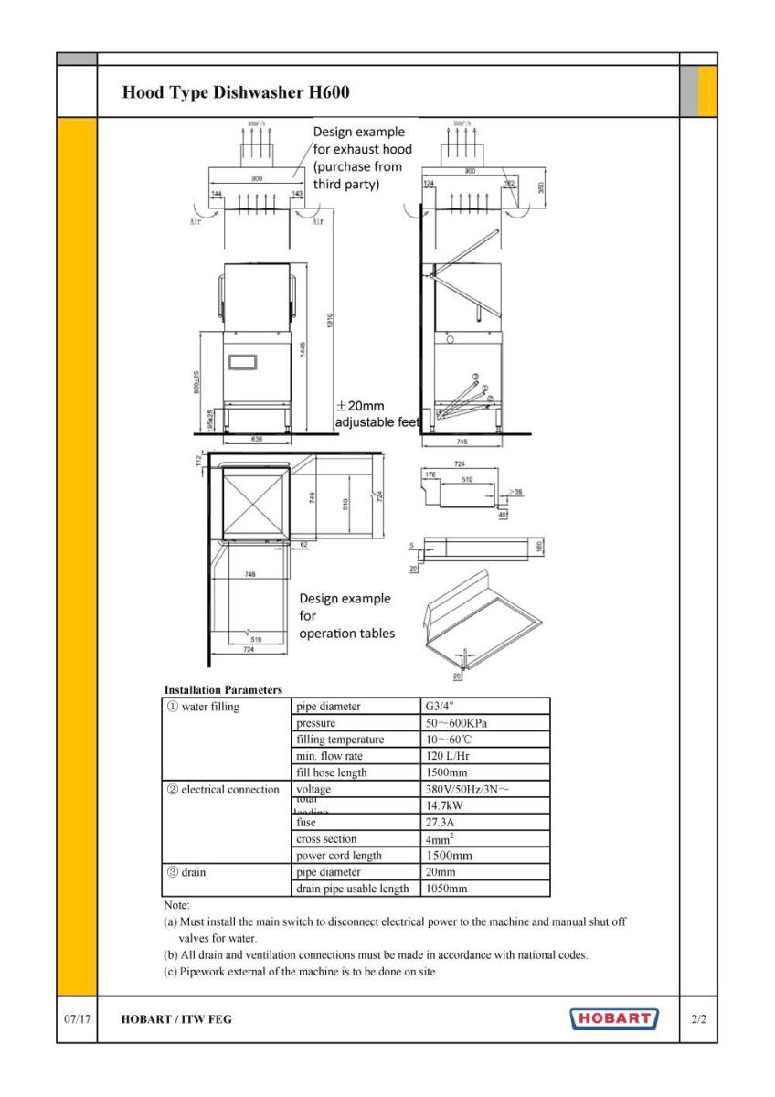
- Thông số kỹ thuật
- Đánh giá chi tiết
- Đặc điểm nổi bật
- Bình luận - đánh giá
| Thông số | Giá trị |
|---|---|
| Tên sản phẩm | Máy Rửa Bát Công Nghiệp Hobart H600 |
| Model | H600 |
| Phân loại | Máy rửa chén công nghiệp cửa mở lên (Hood Type) |
| Xuất xứ | Vui lòng cập nhật theo lô hàng/CO-CQ của BlueHome |
| Bảo hành | Vui lòng cập nhật theo chính sách bảo hành tại BlueHome |
| Năng suất rửa | 50 – 60 rack/giờ |
| Kích thước giỏ (Rack size) | 500 x 500 mm |
| Định mức nước tiêu thụ | Khoảng 3,0 lít/rack |
| Nhiệt độ rửa | 50 – 60°C |
| Nhiệt độ tráng | 82 – 90°C |
| Thiết kế cửa | Cửa mở lên (hood) nâng hạ nhẹ, hỗ trợ thao tác nhanh |
| Vật liệu thân máy | Thép không gỉ (Inox) |
| Ứng dụng phù hợp | Nhà hàng, khách sạn, bếp ăn tập thể, căn tin, bếp công nghiệp |
| Ghi chú vận hành | Năng suất và mức tiêu thụ thực tế phụ thuộc điều kiện cấp nước, nhiệt độ nước đầu vào và cách vận hành. |
Máy rửa bát công nghiệp Hobart H600 là một trong những model nổi bật dành cho quán ăn, nhà hàng, khách sạn và các cơ sở phục vụ ăn uống với tần suất rửa cao. Dòng máy này được thiết kế theo dạng máy rửa bát cửa mở lên (hood type), phù hợp với không gian lắp đặt đặt đứng, thao tác rửa dễ dàng và bền bỉ. Cùng tìm hiểu chi tiết những đặc điểm nổi bật làm nên sức hút của Hobart H600 dưới góc nhìn của chuyên gia.
Thiết Kế Và Cấu Tạo Tối Ưu Cho Môi Trường Công Nghiệp

H600 sử dụng dạng cửa mở lên giúp thao tác đóng mở nhẹ nhàng và tiện lợi. Giỏ rửa kích thước 500 × 500 mm phù hợp với nhiều loại bát đĩa, ly tách, khay inox… Thiết kế khoang rửa sâu, không có ống nước lộ thiên bên trong, tạo không gian thoáng sạch và dễ vệ sinh. Mọi chi tiết chính như bộ phận phun nước, bơm rửa, bộ lọc đều được làm bằng inox chất lượng cao để chống gỉ và gia tăng tuổi thọ máy.
Khoang rửa có chiều cao nạp tối đa khoảng 420 mm, đủ để đặt các loại xoong nồi, tô lớn; đồng thời hệ thống cửa trục cân bằng giúp nâng hạ nhẹ nhàng, giảm lực cho người vận hành. Hệ thống nắp đóng kín giảm thoát nhiệt, tiết kiệm năng lượng và tránh bắn nước ra ngoài.
Hiệu Suất Rửa Mạnh Mẽ – Đáp Ứng Sản Lượng Lớn
Dòng H600 sử dụng bơm rửa công suất 0,6 kW kết hợp với cánh tay phun bằng inox xoay trên và dưới để tạo luồng nước mạnh, giúp đánh sạch vết bẩn cứng đầu. Mỗi chu trình rửa kéo dài từ 150 đến 180 giây, tương đương 50–60 giỏ/giờ, tương đương 500 đĩa hoặc ly theo chuẩn của nhà sản xuất. Hệ thống bơm tráng tăng áp (rinse pump) duy trì áp lực nước ổn định cho giai đoạn tráng, đảm bảo dụng cụ được tráng sạch và khô nhanh.
Nhờ dung tích bể chứa 26 L và lượng nước sử dụng chỉ khoảng 3 L mỗi giỏ, máy đạt hiệu quả rửa cao nhưng vẫn tiết kiệm nước. Công nghệ Thermostop giám sát nhiệt độ rửa và tráng, đảm bảo nước rửa luôn dao động từ 50–60 °C và giai đoạn tráng đạt 80–90 °C để diệt khuẩn. Đối với môi trường kinh doanh bận rộn, khả năng rửa liên tục của H600 giúp duy trì luồng phục vụ ổn định ngay cả trong giờ cao điểm.
Công Nghệ An Toàn Và Tiết Kiệm Năng Lượng
Bên cạnh công suất rửa mạnh mẽ, Hobart H600 còn chú trọng tới an toàn và tiết kiệm năng lượng:
- Chức năng Thermostop: kiểm soát nhiệt độ rửa và tráng, tự động kéo dài chu trình nếu nhiệt độ chưa đạt yêu cầu, giúp dụng cụ luôn được tiệt trùng.
- Hệ thống cửa an toàn: máy tự động dừng khi nắp được mở, tránh nguy hiểm cho người sử dụng.
- Tự động làm sạch: sau mỗi ngày vận hành, người dùng có thể kích hoạt chu trình tự vệ sinh máy. Máy sẽ xả hết nước bẩn và rửa sạch khoang, giúp tăng tuổi thọ và đảm bảo vệ sinh.
- Booster heating: bộ gia nhiệt tráng 12 kW (nước nóng) duy trì nhiệt độ tráng cao nhưng có lớp cách nhiệt tốt, giảm thất thoát nhiệt. Tổng công suất máy khoảng 14,7 kW với nguồn điện 380 V/50 Hz/3N~, phù hợp với hạ tầng điện công nghiệp.
Nhờ các công nghệ tiết kiệm nước và năng lượng, Hobart H600 giúp giảm chi phí vận hành dài hạn. Việc sử dụng nước nóng trung bình hơn 25 °C sẽ giúp máy đạt công suất 60 giỏ/giờ, trong khi nếu kết nối nước lạnh (< 15 °C) công suất còn 50 giỏ/giờ.

Dễ Dàng Vận Hành Và Bảo Trì
Hobart H600 được thiết kế “plug & play” nên cài đặt và vận hành đơn giản. Người dùng chỉ cần bật công tắc nguồn và chọn chu trình rửa; máy sẽ tự động thực hiện các bước nạp nước, làm nóng, rửa và tráng. Các bộ phận như tay phun, lọc rác, bộ vòi phun có thể tháo lắp mà không cần dụng cụ, giúp việc vệ sinh nội bộ dễ dàng. Tất cả các thành phần kỹ thuật quan trọng đều được bố trí ở phía trước máy, thuận tiện cho việc bảo dưỡng.
Bảng điều khiển gắn đèn LED hiển thị nhiệt độ nước rửa và tráng giúp người vận hành dễ dàng kiểm soát trạng thái hoạt động. Hệ thống rửa hai tốc độ (chu trình ngắn và chu trình tiêu chuẩn) linh hoạt cho từng mức độ bẩn của dụng cụ, giúp tiết kiệm thời gian và nước cho các loại bát đĩa ít bẩn.
Hiệu Quả Vệ Sinh Và Độ Bền Cao
Nhờ cánh tay phun bằng inox và vòi phun chống tắc độc quyền, Hobart H600 đảm bảo luồng nước rửa mạnh và đều khắp mọi ngóc ngách. Bộ lọc hai tầng bằng thép không gỉ giữ lại cặn bẩn và vụn thức ăn, tránh cho chúng quay trở lại bám lên bát đĩa. Bể rửa thiết kế liền khối sâu, không có mối hàn, hạn chế sinh vi khuẩn và dễ dàng vệ sinh.
Toàn bộ thân máy làm bằng inox chất lượng cao chống gỉ, đồng thời thiết kế khung vững chắc giúp máy hoạt động ổn định trong môi trường công nghiệp khắc nghiệt. Hệ thống booster tank cách nhiệt tốt giữ nhiệt tráng ổn định, giúp bát đĩa khô nhanh và sáng bóng sau khi lấy ra.
Lợi Ích Khi Sử Dụng Hobart H600
- Nâng cao năng suất: máy rửa tới 60 giỏ/giờ, đáp ứng nhu cầu rửa liên tục trong giờ cao điểm.
- Tiết kiệm nước và điện: mỗi chu trình chỉ tiêu thụ khoảng 3 L nước, công nghệ điều nhiệt tối ưu giúp giảm tiêu hao năng lượng dài hạn.
- Vệ sinh an toàn: nhiệt độ rửa và tráng cao đảm bảo tiệt trùng bát đĩa, phù hợp quy định vệ sinh an toàn thực phẩm.
- Giảm chi phí nhân công: máy tự động hóa hoàn toàn, chỉ cần 1 người vận hành, giảm nhân lực và chi phí lương.
- Tuổi thọ cao, bảo trì đơn giản: cấu tạo bền bỉ, các bộ phận dễ tháo lắp, phụ kiện chính nằm phía trước giúp bảo dưỡng nhanh chóng.
So Sánh Hobart H600 Và Máy Rửa Bát Công Nghiệp Thông Thường
|
Tiêu chí |
Hobart H600 |
Máy rửa bát công nghiệp phổ thông |
|
Kiểu máy |
Cửa mở lên (hood type), thao tác nhẹ nhàng |
Đa dạng (cửa ngang, băng tải), thao tác nặng hơn |
|
Công suất rửa |
50–60 giỏ/giờ (≈500 đĩa) |
30–45 giỏ/giờ |
|
Lượng nước tiêu thụ |
≈3 L/giỏ |
4–7 L/giỏ (cao hơn) |
|
Kiểm soát nhiệt độ |
Có Thermostop, rửa 50–60 °C và tráng 80–90 °C |
Một số model không có tính năng thermostop |
|
Bể rửa |
Liền khối, thép không gỉ, dễ vệ sinh |
Thường có mối ghép, vệ sinh khó khăn |
|
Hiển thị trạng thái |
LED hiển thị nhiệt độ |
Nhiều máy chỉ có đèn báo đơn giản |
|
Bảo trì |
Các bộ phận tháo lắp nhanh, bố trí phía trước |
Phải tháo nắp hông, phức tạp |
|
Giá trị đầu tư |
Giá cao hơn nhưng tiết kiệm chi phí dài hạn |
Giá thấp hơn nhưng chi phí vận hành cao hơn |
So sánh trên cho thấy Hobart H600 có ưu điểm vượt trội về hiệu suất, tiết kiệm nước và điện, đồng thời thuận tiện cho việc bảo trì. Những yếu tố này giúp doanh nghiệp tiết kiệm chi phí tổng thể và nâng cao chất lượng dịch vụ.
Tổng quan máy rửa bát công nghiệp Hobart H600
Máy rửa bát công nghiệp Hobart H600 là lựa chọn đáng đầu tư cho nhà hàng, khách sạn, quán ăn quy mô lớn đòi hỏi năng suất rửa cao và tiêu chuẩn vệ sinh nghiêm ngặt. Với thiết kế hood type nhỏ gọn, công nghệ Thermostop đảm bảo diệt khuẩn, bơm rửa mạnh mẽ và khả năng tiết kiệm nước điện, H600 mang lại giá trị bền vững và tăng hiệu quả vận hành. Bluehome tin rằng model này sẽ là “trợ thủ” đắc lực giúp tối ưu hóa khu vực rửa chén, nâng cao trải nghiệm khách hàng và cạnh tranh trên thị trường dịch vụ ăn uống.
Bếp hồng ngoại
Robot hút bụi lau nhà
Máy hút bụi
Máy lọc không khí
Máy hút ẩm
Tủ bếp
Tủ ủ thịt
Lò vi sóng công nghiệp
Khoá cửa thông minh
Tẩy rửa Máy rửa bát
Lau bếp từ – mặt kính
Tẩy rửa cho Lò nướng – Lò vi sóng
Tẩy rửa cho Hút mùi





